
De laatste telg van eigen ontwikkelingen en ontwerp is een massief houten appartementengebouw in Amsterdam Noord. Deze drie appartementen aan een pocketpark in de Buiksloterham zijn ontstaan uit een samenwerking met XOOMlab collega Harvey Otten. Het kavel is een onderdeel van het circulair rainproof Buiksloterham en Co, een stedenbouwkundige opzet van Nine Dots en de rainproof openbare inrichting Lava.

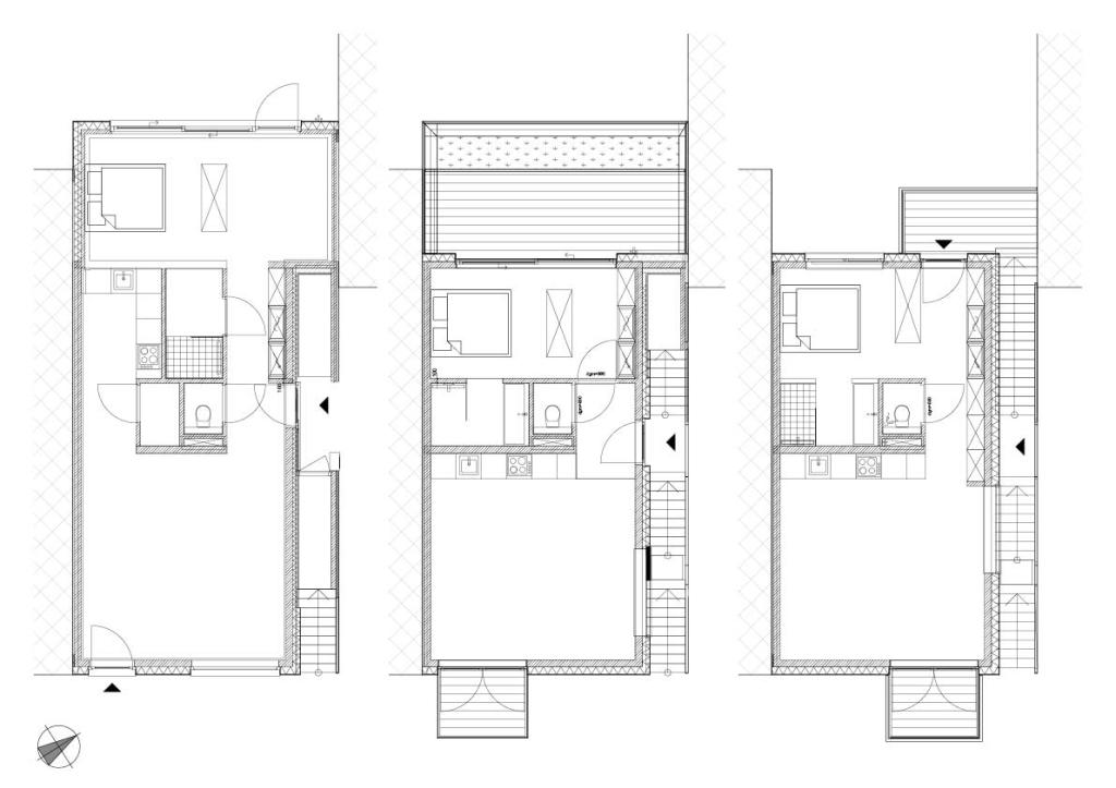
De kavel is gesplitst in drie appartementen. Via de buitentrap is iedere woning vanaf het parkje te bereiken. Het onderste appartement is een bedrijfswoning. Daarboven zijn twee lichte twee-kamerappartementen. Twee grote ramen kijken uit op het pocket-park voor de woning. De vensterbanken onder de ramen zijn verbreed zodat het een extra zitplek in de kleine appartementen is.

De houten plafonds en wanden zijn in het zicht gelaten. De verdiepingshoogte is bijna een halve meter hoger dan standaard.

Alle appartementen hebben aan 2 zijden balkons, een royaal terras of een ruime tuin.

De Amsterdamse graffiti-kunstenaar Hugo Mulder beschilderde de gevel met weelderige golven. Een verwijzing naar het water van het IJ dat honderd meter ten zuiden van het blok stroomt.

Van buiten oogt het gebouw experimenteel maar de echte uitdaging zit van binnen. Voor ons was het een test op kleine schaal om appartementen in hout te bouwen. Het casco is 100% massief houtbouw. Het Cross Laminated Timber (CLT). De vloerpakketten voldoen aan alle geluids- en brandwerendheidseisen zoals die ook in grotere complexen worden gesteld.

De daktrim is met behulp van XOOMlab-collega Sander Bader vakkundig weggedetailleerd. Het kunstwerk van Hugo Mulder loopt naadloos over in de lucht.

Opdrachtgever: FourK6
Ontwikkeling en Ontwerp: BNB architecten, Dirk Jan van Wieringhen Borski en Harvey Otten
BIM: XOOMlab, Sander Bader
Bouwer: Hooijberg b.v. Langedijk Bouw
Constructeur: Breed advies
Schildering: Hugo Mulder DHM

Plaats een reactie